姫路市苫編 既存戸建

855万円

兵庫県姫路市苫編651-24

山陽本線「英賀保」駅徒歩9分

山陽電鉄網干線「西飾磨」駅徒歩25分

山陽電鉄網干線「夢前川」駅徒歩33分

価格
855万円
間取り/建物面積
6K/110.17㎡
所在地
兵庫県姫路市苫編651-24
築年
1974年11月(築51年)
駐車
有(1台)
交通

山陽本線英賀保」駅 徒歩9分

山陽電鉄網干線西飾磨」駅 徒歩25分

山陽電鉄網干線夢前川」駅 徒歩33分

姫路市苫編 既存戸建の基本情報

物件名
姫路市苫編 既存戸建
価格
855万円
建物面積
110.17㎡
土地面積
35.09坪(116.01㎡)
築年月
1974年11月(築51年)
総戸数
-
所在地
兵庫県姫路市苫編651-24
交通

山陽本線英賀保」駅 徒歩9分

山陽電鉄網干線西飾磨」駅 徒歩25分

山陽電鉄網干線夢前川」駅 徒歩33分

姫路市苫編 既存戸建の詳細情報

設備条件
  • 閑静な住宅地
設備(その他)
    -
駐車場/月額
有(1台)/-
土地権利
所有権
国土法届出
不要
用途地域
第二種低層住居専用
取引態様
仲介
引渡し
即時
備考
こだわりで選びたい方におすすめ。姫路市エリアで住まいをお探しなら「姫路市苫編 既存戸建」。ニーズのある土地面積116.01㎡(公簿)の中古一戸建です。住みやすい空間は前面道路6m以上の中古一戸建だからこそ実現できる空間です。平坦地の物件は、アップダウンが少ないので買い物での移動も楽になりますね。住みよい環境で、心にゆとりのある生活を送りませんか。快適な住環境でストレスフリーな生活を始めましょう。ぜひご検討ください。

姫路市苫編 既存戸建のコメント(おすすめポイント)

新着情報:姫路市苫編 既存戸建の空室情報ならコチラ。傾斜地より建築が楽な平坦地です。駅から徒歩9分圏内に位置する物件です。好条件の揃った前面道路6m以上の物件をお薦めいたします。不動産をお探しなら、当社にお任せください。お住まいが変われば、生活が変わります。当社では、よりよい生活を送るためのお手伝いを致します。ぜひご利用くださいませ。

姫路市苫編 既存戸建で募集中の物件

  1. 33.32坪 (110.17㎡)

    855万円(25.66万円/坪)

近隣の物件

  1. 姫路市白鳥台3丁目

    5LDK (119.53㎡)

    870万円

  2. 姫路市梅ケ谷町

    5LDK (87.47㎡)

    950万円

  3. 姫路市城見台3丁目

    5LDK (128.34㎡)

    1,799万円

  4. 姫路市八代東光寺町

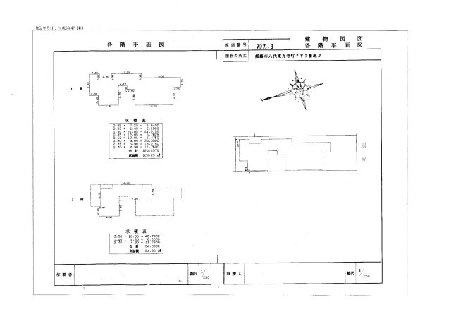
    6LDK (124.25㎡)

    2,250万円

姫路市苫編 既存戸建

お気軽にお問い合わせください

無料お問い合わせ

勝美住宅グループ いい不動産プラザ(株)

0120-25-2103

09:00~19:00

(休: 水曜日・木曜日・夏季・年末年始)